Appartamento 2 piano con box - In asta putigano

149.175 €
114 m²
Superficie
4
Locali
3
Camere
1
Bagni
1
Box
in asta
appartamento
Putignano
Descrizione
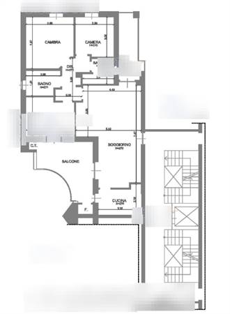
diritto di proprietà per 1/1 dell’appartamento ubicato in putignano, al secondo piano dell’edificio condominiale di via peppino impastato civ. n. 15, della superficie commerciale di mq 114,69 e presenta la porta di ingresso sulla destra arrivando sul pianerottolo dal corpo scala diritto di proprietà per 1/1 del box auto ubicato in putignano, al primo piano interrato dell’edificio condominiale e con accesso da via peppino impastato civ. 25
Asta pubblicata per la 1 volta

EXPERT IN ASTA è una piattaforma dedicata alle Aste giudiziarie nella tua provincia .
Sul nostro sito trovi tutti gli immobili presenti in asta nella provincia di bari
Proposta immobiliare in asta. Info dettagliate in agenzia o telefonicamente.

Possibilità’ di Mutuo al 100% sugli immobili in asta con banche convenzionate

Per maggiori informazioni puoi contattare il nostro referente di zona

SU QUESTO IMMOBILE E’ POSSIBILE:

- Mutuo al 100%
- Visita Interni
- NO Oneri Notarili
- Nessuna Ipoteca
- Agevolazione Prima Casa

Le foto pubblicate potrebbero non corrispondere all'immobile specifico,puoi visionare tutti i documenti ufficiali presso la nostra filiale.

SERVIZI OFFERTI :

1. PRIMA CONSULENZA
Appuntamento presso Filiale con consulente asta dove verrò inserita la sua richiesta immobiliare ( le verranno periodicamente inviati immobili in base alla sua richiesta

2. MEDIAZIONE CREDITIZIA
Servizio esclusivo con valutazione del credito tramite i colleghi in ufficio con studio di fattibilità mutuo per la partecipazione in asta con mutuo fino al 100%

3. ASSISTENZA TECNICO - LEGALE
- Ricerca Immobili ed invio settimanale per email
- Studio della perizia e della documentazione
- Accertamenti catastali per eventuali abusi edilizi
- Accompagnamento Visita Immobile
- Disbrigo pratiche per la partecipazione
- Assistenza Legale il giorno della vendita presso il tribunale o ufficio del delegato asta
- Rilascio del decreto di trasferimento in tempi brevi
- Assistenza per il Saldo Prezzo
- Recupero imposte post asta
- Assistenza alla Consegna Immobile

Per maggiori informazioni puoi contattare il nostro referente di zona

Si precisa che il presente annuncio è volto alla promozione di servizi tecnico-immobiliari e di accompagnamento in asta e non costituisce in alcun modo pubblicità volta alla vendita dell’immobile o alla sua intermediazione..
Il servizio offerto, aggiuntivo e di natura consulenziale, non osta alla libera e gratuita partecipazione in asta così come previsto dalla legge.
Caratteristiche principali
Codice:
V000499 BA
Città:
Putignano
Categoria:
Appartamento
Locali:
4
Camere:
3
Bagni:
1
Mq:
114
Box:
1
Mq Box:
27
Balconi:
2
Mq Balcone:
12
Terrazzi:
1
mq Terrazzo:
16
Piano:
2
Classe energetica:
In fase di valutazione
Stato Immobile:
Buono
Grado:
Signorile
Lati Liberi:
2
Giardino:
Comune
Arredi:
Non Arredato
Tipo Soggiorno:
Salone
Tipo Cucina:
Abitabile
Riscaldamento:
Autonomo
Tipo Riscaldam.:
Caldaia
Tipo Impianto:
Radiatori
Fonte Energetica:
Metano
Acqua Calda:
Autonoma
Accessori
Aria Condizionata
Ascensore
Doppi Vetri
Porta Blindata
Ripostiglio
Video Citofono
Zanzariere
Planimetrie
Video
Mappa
Via Peppino Impastato, 15, 70017 Putignano BA, Italia - Putignano (BA)
Cookie preference